НАПРЯМУЮ ОТ ИНВЕСТОРА !!! БЕЗ КОМИССИИ !!!
👨💼 Ознакомьтесь с доступными квартирами в таблице ниже и свяжитесь с нами, пока кто-то еще не опередил вас в выборе дома вашей мечты.
Распределение пола
Раздел "A"
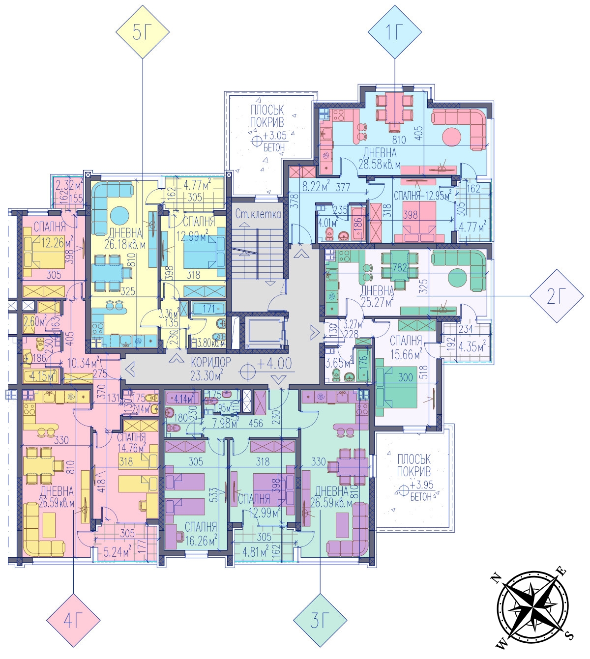
Раздел "B"
Раздел "B"
Раздел "D"
Раздел "E"
Раздел "E"
Раздел "G"
Раздел "A"

Раздел "B"

Раздел "B"

Раздел "D"

Раздел "E"

Раздел "E"

Раздел "G"

Обстановка на территории комплекса
| Раздел | пол | номер | тип | выставка | площадь застройки | общие части | территория с общими частями | Статус | изображение |
|---|---|---|---|---|---|---|---|---|---|
| А | 2 | Приложение 1A | одна спальня | SI | 70.29 м2 | 13.33 м2 | 86.52 м2 | Бесплатно | https://bohemihomes.bg/wp-content/uploads/2025/09/1a.jpg |
| А | 2 | Приложение 2А | одна спальня | NW | 61.54 м2 | 11.67 м2 | 75.96 м2 | Бесплатно | https://bohemihomes.bg/wp-content/uploads/2025/09/2a.jpg |
| А | 2 | Приложение 3A | три спальни | SW | 87.23 м2 | 16.55 м2 | 106.89 м2 | Бесплатно | https://bohemihomes.bg/wp-content/uploads/2025/09/3a.jpg |
| А | 2 | Приложение 4A | три спальни | UZI | 93.03 м2 | 17.65 м2 | 113.94 м2 | Бесплатно | https://bohemihomes.bg/wp-content/uploads/2025/09/4a.jpg |
| А | 2 | Приложение 5A | одна спальня | SI | 58.55 м2 | 11.11 м2 | 72.22 м2 | продано | |
| А | 3 | Приложение 6A | одна спальня | SI | 70.29 м2 | 13.33 м2 | 86.55 м2 | продано | |
| А | 3 | Приложение. 7А | одна спальня | NW | 61.54 м2 | 11.67 м2 | 75.97 м2 | продано | |
| А | 3 | Приложение 8A | три спальни | SW | 87.23 м2 | 16.55 м2 | 106.90 м2 | Бесплатно | https://bohemihomes.bg/wp-content/uploads/2025/09/8a.jpg |
| А | 3 | Приложение 9A | три спальни | UZI | 93.03 м2 | 17.65 м2 | 114.37 м2 | Бесплатно | https://bohemihomes.bg/wp-content/uploads/2025/09/9a.jpg |
| А | 3 | Приложение 10A | одна спальня | SI | 58.55 м2 | 11.11 м2 | 72.29 м2 | продано | |
| А | 4 | Приложение 11A | одна спальня | SI | 70.29 м2 | 13.33 м2 | 86.61 м2 | Бесплатно | https://bohemihomes.bg/wp-content/uploads/2025/09/11a.jpg |
| А | 4 | Приложение 12A | одна спальня | NW | 61.54 м2 | 11.67 м2 | 76.01 м2 | продано | |
| А | 4 | Приложение 13A | три спальни | SW | 87.23 м2 | 16.55 м2 | 106.92 м2 | продано | |
| А | 4 | Приложение 14A | три спальни | UZI | 93.03 м2 | 17.65 м2 | 114.55 м2 | продано | |
| А | 4 | Приложение 15A | одна спальня | SI | 58.55 м2 | 11.11 м2 | 72.34 м2 | продано | |
| А | 5 | Приложение 16A | одна спальня | SI | 70.29 м2 | 13.33 м2 | 86.65 м2 | Бесплатно | https://bohemihomes.bg/wp-content/uploads/2025/09/16a.jpg |
| А | 5 | Приложение 17A | одна спальня | NW | 61.54 м2 | 11.67 м2 | 76.05 м2 | продано | |
| А | 5 | Приложение 18A | три спальни | SW | 87.23 м2 | 16.55 м2 | 106.94 м2 | продано | |
| А | 5 | Приложение 19A | три спальни | UZI | 93.03 м2 | 17.65 м2 | 114.58 м2 | Бесплатно | https://bohemihomes.bg/wp-content/uploads/2025/09/19a.jpg |
| А | 5 | Приложение 20A | одна спальня | SI | 58.55 м2 | 11.11 м2 | 72.35 м2 | продано | |
| А | 6 | Приложение 21A | одна спальня | SI | 70.29 м2 | 13.33 м2 | 86.69 м2 | Бесплатно | |
| А | 6 | Приложение 22A | одна спальня | NW | 61.54 м2 | 11.67 м2 | 76.07 м2 | продано | |
| А | 6 | Приложение 23A | три спальни | SW | 87.23 м2 | 16.55 м2 | 106.98 м2 | продано | |
| А | 6 | Приложение 24A | три спальни | UZI | 93.03 м2 | 17.65 м2 | 115.84 м2 | Бесплатно | https://bohemihomes.bg/wp-content/uploads/2025/09/24a.jpg |
| А | 6 | Приложение 25A | одна спальня | SI | 58.55 м2 | 11.11 м2 | 72.38 м2 | продано | |
| А | 7 | Приложение 26A | одна спальня | NW | 63.14 м2 | 11.98 м2 | 78.00 м2 | Бесплатно | https://bohemihomes.bg/wp-content/uploads/2025/09/26a.jpg |
| А | 7 | Приложение 27A | три спальни | SUS | 87.23 м2 | 16.55 м2 | 107.00 м2 | Бесплатно | https://bohemihomes.bg/wp-content/uploads/2025/09/27a.jpg |
| А | 7 | Приложение 28A | три спальни | UZI | 93.03 м2 | 17.65 м2 | 115.86 м2 | Бесплатно | https://bohemihomes.bg/wp-content/uploads/2025/09/28a.jpg |
| А | 7 | Приложение 29A | одна спальня | SI | 58.55 м2 | 11.11 м2 | 72.41 м2 | Бесплатно | https://bohemihomes.bg/wp-content/uploads/2025/09/29a.jpg |
| Б | 2 | Приложение 1B | одна спальня | SI | 58.22 м2 | 11.06 м2 | 72.03 м2 | продано | |
| Б | 2 | Приложение 2B | три спальни | NW | 93.02 м2 | 17.64 м2 | 115.15 м2 | Бесплатно | https://bohemihomes.bg/wp-content/uploads/2025/09/2b.jpg |
| Б | 2 | Приложение 3B | три спальни | SW | 86.46 м2 | 16.40 м2 | 107.10 м2 | Бесплатно | https://bohemihomes.bg/wp-content/uploads/2025/09/3b.jpg |
| Б | 2 | Приложение 4B | одна спальня | UZI | 76.55 м2 | 14.52 м2 | 95.31 м2 | Бесплатно | https://bohemihomes.bg/wp-content/uploads/2025/09/4b.jpg |
| Б | 2 | Приложение 5B | одна спальня | SI | 70.35 м2 | 13.34 м2 | 86.80 м2 | Бесплатно | https://bohemihomes.bg/wp-content/uploads/2025/09/5b.jpg |
| Б | 3 | Приложение 6B | одна спальня | SI | 58.22 м2 | 11.06 м2 | 72.36 м2 | продано | |
| Б | 3 | Приложение. 7Б | три спальни | NW | 93.02 м2 | 17.64 м2 | 115.18 м2 | Бесплатно | https://bohemihomes.bg/wp-content/uploads/2025/09/7b.jpg |
| Б | 3 | Приложение 8B | три спальни | SW | 86.46 м2 | 16.40 м2 | 107.10 м2 | продано | |
| Б | 3 | Приложение 9B | одна спальня | UZI | 76.55 м2 | 14.52 м2 | 83.95 м2 | продано | |
| Б | 3 | Приложение 10B | одна спальня | SI | 70.35 м2 | 13.34 м2 | 86.82 м2 | продано | |
| Б | 4 | Приложение 11B | одна спальня | SI | 58.22 м2 | 11.06 м2 | 72.39 м2 | продано | |
| Б | 4 | Приложение 12B | три спальни | NW | 93.02 м2 | 17.64 м2 | 115.70 м2 | продано | |
| Б | 4 | Приложение 13B | три спальни | SW | 86.46 м2 | 16.40 м2 | 107.10 м2 | Бесплатно | https://bohemihomes.bg/wp-content/uploads/2025/09/13b.jpg |
| Б | 4 | Приложение 14B | одна спальня | UZI | 76.55 м2 | 14.52 м2 | 83.95 м2 | продано | |
| Б | 4 | Приложение 15B | одна спальня | SI | 70.35 м2 | 13.34 м2 | 86.82 м2 | продано | |
| Б | 5 | Приложение 16B | одна спальня | SI | 58.22 м2 | 11.06 м2 | 72.39 м2 | продано | |
| Б | 5 | Приложение 17B | три спальни | NW | 93.02 м2 | 17.64 м2 | 115.70 м2 | продано | |
| Б | 5 | Приложение 18B | три спальни | SW | 86.46 м2 | 16.40 м2 | 107.12 м2 | продано | |
| Б | 5 | Приложение 19B | одна спальня | UZI | 76.55 м2 | 14.52 м2 | 83.95 м2 | продано | |
| Б | 5 | Приложение 20B | одна спальня | SI | 70.35 м2 | 13.34 м2 | 86.82 м2 | Бесплатно | https://bohemihomes.bg/wp-content/uploads/2025/09/20b.jpg |
| Б | 6 | Приложение 21B | одна спальня | SI | 58.22 м2 | 11.06 м2 | 72.39 м2 | продано | |
| Б | 6 | Приложение 22B | три спальни | NW | 93.02 м2 | 17.64 м2 | 115.70 м2 | Бесплатно | https://bohemihomes.bg/wp-content/uploads/2025/09/22b.jpg |
| Б | 6 | Приложение 23B | три спальни | SW | 86.46 м2 | 16.40 м2 | 107.12 м2 | продано | |
| Б | 6 | Приложение 24B | одна спальня | UZI | 76.55 м2 | 14.52 м2 | 83.96 м2 | продано | |
| Б | 6 | Приложение 25B | одна спальня | SI | 70.35 м2 | 13.34 м2 | 86.85 м2 | продано | |
| Б | 7 | Приложение 26B | одна спальня | SI | 58.22 м2 | 11.06 м2 | 72.47 м2 | Бесплатно | https://bohemihomes.bg/wp-content/uploads/2025/09/26b.jpg |
| Б | 7 | Приложение 27B | три спальни | NW | 93.02 м2 | 17.64 м2 | 116.30 м2 | Бесплатно | https://bohemihomes.bg/wp-content/uploads/2025/09/27b.jpg |
| Б | 7 | Приложение 28B | три спальни | SW | 86.46 м2 | 16.40 м2 | 107.12 м2 | продано | |
| Б | 7 | Приложение 29B | одна спальня | UZI | 76.55 м2 | 14.52 м2 | 83.96 м2 | продано | |
| Б | 7 | Приложение 30B | одна спальня | SI | 70.35 м2 | 13.34 м2 | 86.88 м2 | продано | |
| Б | 8 | Приложение 31B | одна спальня | NW | 58.33 м2 | 11.06 м2 | 72.47 м2 | Бесплатно | https://bohemihomes.bg/wp-content/uploads/2025/09/31b.jpg |
| Б | 8 | Приложение 32B | три спальни | SUS | 96.92 м2 | 18.38 м2 | 121.39 м2 | Бесплатно | https://bohemihomes.bg/wp-content/uploads/2025/09/32b.jpg |
| Б | 8 | Приложение 33B | три спальни | UZI | 86.46 м2 | 16.40 м2 | 107.12 м2 | продано | |
| Б | 8 | Приложение 34B | одна спальня | SI | 69.48 м2 | 13.18 м2 | 85.79 м2 | продано | |
| В | 2 | Приложение 1B | одна спальня | SI | 70.35 м2 | 13.05 м2 | 86.77 м2 | Бесплатно | https://bohemihomes.bg/wp-content/uploads/2025/09/v-1-6-11-16-21-26.jpg |
| В | 2 | Приложение 2B | одна спальня | NW | 76.53 м2 | 14.20 м2 | 94.97 м2 | Бесплатно | https://bohemihomes.bg/wp-content/uploads/2025/09/v-2-7-12-17-22-27.jpg |
| В | 2 | Приложение 3B | три спальни | SW | 85.98 м2 | 15.95 м2 | 106.17 м2 | Бесплатно | https://bohemihomes.bg/wp-content/uploads/2025/09/v-3-8-13-18-23-28.jpg |
| В | 2 | Приложение 4B | три спальни | UZI | 93.02 м2 | 17.25 м2 | 115.31 м2 | Бесплатно | https://bohemihomes.bg/wp-content/uploads/2025/09/v-4-9-14-19-24-29.jpg |
| В | 2 | Приложение 5B | одна спальня | SI | 58.33 м2 | 10.82 м2 | 71.97 м2 | продано | https://bohemihomes.bg/wp-content/uploads/2025/09/v-5-10-15-20-25-30.jpg |
| В | 3 | Приложение 6B | одна спальня | SI | 70.35 м2 | 13.05 м2 | 86.79 м2 | Бесплатно | https://bohemihomes.bg/wp-content/uploads/2025/09/v-1-6-11-16-21-26.jpg |
| В | 3 | Приложение. 7В | одна спальня | NW | 76.53 м2 | 14.20 м2 | 83.78 м2 | Бесплатно | https://bohemihomes.bg/wp-content/uploads/2025/09/v-2-7-12-17-22-27.jpg |
| В | 3 | Приложение 8B | три спальни | SW | 85.98 м2 | 15.95 м2 | 106.74 м2 | продано | https://bohemihomes.bg/wp-content/uploads/2025/09/v-3-8-13-18-23-28.jpg |
| В | 3 | Приложение 9B | три спальни | UZI | 93.02 м2 | 17.25 м2 | 115.32 м2 | продано | https://bohemihomes.bg/wp-content/uploads/2025/09/v-4-9-14-19-24-29.jpg |
| В | 3 | Приложение 10B | одна спальня | SI | 58.33 м2 | 10.82 м2 | 72.26 м2 | продано | https://bohemihomes.bg/wp-content/uploads/2025/09/v-5-10-15-20-25-30.jpg |
| В | 4 | Приложение 11B | одна спальня | SI | 70.35 м2 | 13.05 м2 | 86.81 м2 | Бесплатно | https://bohemihomes.bg/wp-content/uploads/2025/09/v-1-6-11-16-21-26.jpg |
| В | 4 | Приложение 12B | одна спальня | NW | 76.53 м2 | 14.20 м2 | 83.78 м2 | Бесплатно | https://bohemihomes.bg/wp-content/uploads/2025/09/v-2-7-12-17-22-27.jpg |
| В | 4 | Приложение 13B | три спальни | SW | 85.98 м2 | 15.95 м2 | 106.74 м2 | продано | https://bohemihomes.bg/wp-content/uploads/2025/09/v-3-8-13-18-23-28.jpg |
| В | 4 | Приложение 14B | три спальни | UZI | 93.02 м2 | 17.25 м2 | 115.75 м2 | Бесплатно | https://bohemihomes.bg/wp-content/uploads/2025/09/v-4-9-14-19-24-29.jpg |
| В | 4 | Приложение 15B | одна спальня | SI | 58.33 м2 | 10.82 м2 | 72.39 м2 | продано | https://bohemihomes.bg/wp-content/uploads/2025/09/v-5-10-15-20-25-30.jpg |
| В | 5 | Приложение 16B | одна спальня | SI | 70.35 м2 | 13.05 м2 | 87.64 м2 | продано | https://bohemihomes.bg/wp-content/uploads/2025/09/v-1-6-11-16-21-26.jpg |
| В | 5 | Приложение 17B | одна спальня | NW | 76.53 м2 | 14.20 м2 | 83.79 м2 | Бесплатно | https://bohemihomes.bg/wp-content/uploads/2025/09/v-2-7-12-17-22-27.jpg |
| В | 5 | Приложение 18B | три спальни | SW | 85.98 м2 | 15.95 м2 | 106.74 м2 | Бесплатно | https://bohemihomes.bg/wp-content/uploads/2025/09/v-3-8-13-18-23-28.jpg |
| В | 5 | Приложение 19B | три спальни | UZI | 93.02 м2 | 17.25 м2 | 116.00 м2 | Бесплатно | https://bohemihomes.bg/wp-content/uploads/2025/09/v-4-9-14-19-24-29.jpg |
| В | 5 | Приложение 20B | одна спальня | SI | 58.33 м2 | 10.82 м2 | 72.39 м2 | продано | https://bohemihomes.bg/wp-content/uploads/2025/09/v-5-10-15-20-25-30.jpg |
| В | 6 | Приложение 21B | одна спальня | SI | 70.35 м2 | 13.05 м2 | 87.64 м2 | Бесплатно | https://bohemihomes.bg/wp-content/uploads/2025/09/v-1-6-11-16-21-26.jpg |
| В | 6 | Приложение 22B | одна спальня | NW | 76.53 м2 | 14.20 м2 | 83.79 м2 | продано | https://bohemihomes.bg/wp-content/uploads/2025/09/v-2-7-12-17-22-27.jpg |
| В | 6 | Приложение 23B | три спальни | SW | 85.98 м2 | 15.95 м2 | 106.74 м2 | Бесплатно | https://bohemihomes.bg/wp-content/uploads/2025/09/v-3-8-13-18-23-28.jpg |
| В | 6 | Приложение 24B | три спальни | UZI | 93.02 м2 | 17.25 м2 | 116.08 м2 | Бесплатно | https://bohemihomes.bg/wp-content/uploads/2025/09/v-4-9-14-19-24-29.jpg |
| В | 6 | Приложение 25B | одна спальня | SI | 58.33 м2 | 10.82 м2 | 72.39 м2 | продано | https://bohemihomes.bg/wp-content/uploads/2025/09/v-5-10-15-20-25-30.jpg |
| В | 7 | Приложение 26B | одна спальня | SI | 70.35 м2 | 13.05 м2 | 87.64 м2 | Бесплатно | https://bohemihomes.bg/wp-content/uploads/2025/09/v-1-6-11-16-21-26.jpg |
| В | 7 | Приложение 27B | одна спальня | NW | 76.53 м2 | 14.20 м2 | 83.79 м2 | Бесплатно | https://bohemihomes.bg/wp-content/uploads/2025/09/v-2-7-12-17-22-27.jpg |
| В | 7 | Приложение 28B | три спальни | SW | 85.98 м2 | 15.95 м2 | 107.43 м2 | продано | https://bohemihomes.bg/wp-content/uploads/2025/09/v-3-8-13-18-23-28.jpg |
| В | 7 | Приложение 29B | три спальни | UZI | 93.02 м2 | 17.25 м2 | 117.77 м2 | Бесплатно | https://bohemihomes.bg/wp-content/uploads/2025/09/v-4-9-14-19-24-29.jpg |
| В | 7 | Приложение 30B | одна спальня | SI | 58.33 м2 | 10.82 м2 | 72.39 м2 | продано | https://bohemihomes.bg/wp-content/uploads/2025/09/v-5-10-15-20-25-30.jpg |
| В | 8 | Приложение 31B | одна спальня | NW | 69.48 м2 | 12.89 м2 | 85.64 м2 | Бесплатно | https://bohemihomes.bg/wp-content/uploads/2025/09/v31.jpg |
| В | 8 | Приложение 32B | три спальни | SUS | 86.46 м2 | 16.04 м2 | 107.51 м2 | Бесплатно | https://bohemihomes.bg/wp-content/uploads/2025/09/v32.jpg |
| В | 8 | Приложение 33B | три спальни | UZI | 97.03 м2 | 18.00 м2 | 127.17 м2 | Бесплатно | https://bohemihomes.bg/wp-content/uploads/2025/09/v33.jpg |
| В | 8 | Приложение 34B | одна спальня | SI | 58.33 м2 | 10.82 м2 | 72.39 м2 | Бесплатно | https://bohemihomes.bg/wp-content/uploads/2025/09/v34.jpg |
| Г | 2 | Приложение 1D | одна спальня | SI | 70.48 м2 | 13.07 м2 | 85.96 м2 | Бесплатно | https://bohemihomes.bg/wp-content/uploads/2025/09/g-1-6-11-16-21.jpg |
| Г | 2 | Приложение 2D | одна спальня | NW | 61.54 м2 | 11.41 м2 | 75.18 м2 | продано | https://bohemihomes.bg/wp-content/uploads/2025/09/g-2-7-12-17-22.jpg |
| Г | 2 | App. 3d | три спальни | SW | 87.23 м2 | 16.18 м2 | 106.12 м2 | Бесплатно | https://bohemihomes.bg/wp-content/uploads/2025/09/g-3-8-13-18-23.jpg |
| Г | 2 | Приложение 4D | три спальни | UZI | 93.03 м2 | 17.26 м2 | 113.35 м2 | Бесплатно | https://bohemihomes.bg/wp-content/uploads/2025/09/g-4-9-14-19-24.jpg |
| Г | 2 | Приложение 5D | одна спальня | SI | 58.44 м2 | 10.84 м2 | 71.13 м2 | продано | https://bohemihomes.bg/wp-content/uploads/2025/09/g-5-10-15-20-25.jpg |
| Г | 3 | Приложение 6D | одна спальня | SI | 70.48 м2 | 13.07 м2 | 85.98 м2 | продано | https://bohemihomes.bg/wp-content/uploads/2025/09/g-1-6-11-16-21.jpg |
| Г | 3 | Приложение. 7Г | одна спальня | NW | 61.54 м2 | 11.41 м2 | 75.18 м2 | продано | https://bohemihomes.bg/wp-content/uploads/2025/09/g-2-7-12-17-22.jpg |
| Г | 3 | Приложение 8D | три спальни | SW | 87.23 м2 | 16.18 м2 | 106.15 м2 | продано | https://bohemihomes.bg/wp-content/uploads/2025/09/g-3-8-13-18-23.jpg |
| Г | 3 | Приложение 9D | три спальни | UZI | 93.03 м2 | 17.26 м2 | 113.44 м2 | Бесплатно | https://bohemihomes.bg/wp-content/uploads/2025/09/g-4-9-14-19-24.jpg |
| Г | 3 | Приложение 10D | одна спальня | SI | 58.44 м2 | 10.84 м2 | 71.15 м2 | продано | https://bohemihomes.bg/wp-content/uploads/2025/09/g-5-10-15-20-25.jpg |
| Г | 4 | Приложение 11D | одна спальня | SI | 70.48 м2 | 13.07 м2 | 86.00 м2 | продано | https://bohemihomes.bg/wp-content/uploads/2025/09/g-1-6-11-16-21.jpg |
| Г | 4 | Приложение 12D | одна спальня | NW | 61.54 м2 | 11.41 м2 | 75.21 м2 | продано | https://bohemihomes.bg/wp-content/uploads/2025/09/g-2-7-12-17-22.jpg |
| Г | 4 | Приложение 13D | три спальни | SW | 87.23 м2 | 16.18 м2 | 106.21 м2 | продано | https://bohemihomes.bg/wp-content/uploads/2025/09/g-3-8-13-18-23.jpg |
| Г | 4 | Приложение 14D | три спальни | UZI | 93.03 м2 | 17.26 м2 | 113.55 м2 | продано | https://bohemihomes.bg/wp-content/uploads/2025/09/g-4-9-14-19-24.jpg |
| Г | 4 | Приложение 15D | одна спальня | SI | 58.44 м2 | 10.84 м2 | 71.25 м2 | продано | https://bohemihomes.bg/wp-content/uploads/2025/09/g-5-10-15-20-25.jpg |
| Г | 5 | Приложение 16D | одна спальня | SI | 70.48 м2 | 13.07 м2 | 86.02 м2 | продано | https://bohemihomes.bg/wp-content/uploads/2025/09/g-1-6-11-16-21.jpg |
| Г | 5 | Приложение 17D | одна спальня | NW | 61.54 м2 | 11.41 м2 | 75.24 м2 | продано | https://bohemihomes.bg/wp-content/uploads/2025/09/g-2-7-12-17-22.jpg |
| Г | 5 | Приложение 18D | три спальни | SW | 87.23 м2 | 16.18 м2 | 106.24 м2 | Бесплатно | https://bohemihomes.bg/wp-content/uploads/2025/09/g-3-8-13-18-23.jpg |
| Г | 5 | Приложение 19D | три спальни | UZI | 93.03 м2 | 17.26 м2 | 113.85 м2 | Бесплатно | https://bohemihomes.bg/wp-content/uploads/2025/09/g-4-9-14-19-24.jpg |
| Г | 5 | Приложение 20D | одна спальня | SI | 58.44 м2 | 10.84 м2 | 71.30 м2 | продано | https://bohemihomes.bg/wp-content/uploads/2025/09/g-5-10-15-20-25.jpg |
| Г | 6 | Приложение 21D | одна спальня | SI | 70.48 м2 | 13.07 м2 | 86.24 м2 | продано | https://bohemihomes.bg/wp-content/uploads/2025/09/g-1-6-11-16-21.jpg |
| Г | 6 | Приложение 22D | одна спальня | NW | 61.54 м2 | 11.41 м2 | 75.25 м2 | продано | https://bohemihomes.bg/wp-content/uploads/2025/09/g-2-7-12-17-22.jpg |
| Г | 6 | Приложение 23D | три спальни | SW | 87.23 м2 | 16.18 м2 | 106.24 м2 | продано | https://bohemihomes.bg/wp-content/uploads/2025/09/g-3-8-13-18-23.jpg |
| Г | 6 | Приложение 24D | три спальни | UZI | 93.03 м2 | 17.26 м2 | 114.45 м2 | Бесплатно | https://bohemihomes.bg/wp-content/uploads/2025/09/g-4-9-14-19-24.jpg |
| Г | 6 | Приложение 25D | одна спальня | SI | 58.44 м2 | 10.84 м2 | 71.39 м2 | продано | https://bohemihomes.bg/wp-content/uploads/2025/09/g-5-10-15-20-25.jpg |
| Г | 7 | Приложение 26D | одна спальня | NW | 64.14 м2 | 11.90 м2 | 78.40 м2 | продано | https://bohemihomes.bg/wp-content/uploads/2025/09/g26.jpg |
| Г | 7 | Приложение 27D | три спальни | SUS | 87.23 м2 | 16.18 м2 | 106.31 м2 | продано | https://bohemihomes.bg/wp-content/uploads/2025/09/g27.jpg |
| Г | 7 | Приложение 28D | три спальни | UZI | 93.03 м2 | 17.26 м2 | 115.96 м2 | продано | https://bohemihomes.bg/wp-content/uploads/2025/09/g28.jpg |
| Г | 7 | Приложение 29D | одна спальня | SI | 58.44 м2 | 10.84 м2 | 71.51 м2 | Бесплатно | https://bohemihomes.bg/wp-content/uploads/2025/09/g29.jpg |
| Д | 2 | Приложение 1E | одна спальня | SI | 71.26 м2 | 13.88 м2 | 88.06 м2 | Бесплатно | https://bohemihomes.bg/wp-content/uploads/2025/09/1-6-11-16-21.jpg |
| Д | 2 | Приложение 2D | одна спальня | NW | 61.57 м2 | 11.99 м2 | 76.26 м2 | Бесплатно | https://bohemihomes.bg/wp-content/uploads/2025/09/2-7-12-17-22.jpg |
| Д | 2 | Приложение. 3D | три спальни | SW | 88.6 м2 | 17.25 м2 | 109.11 м2 | Бесплатно | https://bohemihomes.bg/wp-content/uploads/2025/09/3-8-13-18-23.jpg |
| Д | 2 | Приложение 4E | три спальни | UZI | 94.39 м2 | 18.38 м2 | 116.56 м2 | Бесплатно | https://bohemihomes.bg/wp-content/uploads/2025/09/4-9-14-19-24.jpg |
| Д | 2 | Приложение 5E | одна спальня | SI | 58.94 м2 | 11.48 м2 | 72.45 м2 | продано | https://bohemihomes.bg/wp-content/uploads/2025/09/5-10-15-20-25.jpg |
| Д | 3 | Приложение 6E | одна спальня | SI | 70.39 м2 | 13.71 м2 | 87.02 м2 | Бесплатно | https://bohemihomes.bg/wp-content/uploads/2025/09/1-6-11-16-21.jpg |
| Д | 3 | Приложение. 7Д | одна спальня | NW | 61.57 м2 | 11.99 м2 | 76.36 м2 | Бесплатно | https://bohemihomes.bg/wp-content/uploads/2025/09/2-7-12-17-22.jpg |
| Д | 3 | Приложение 8E | три спальни | SW | 87.64 м2 | 17.07 м2 | 107.97 м2 | продано | https://bohemihomes.bg/wp-content/uploads/2025/09/3-8-13-18-23.jpg |
| Д | 3 | Приложение 9E | три спальни | UZI | 93.32 м2 | 18.17 м2 | 115.89 м2 | Бесплатно | https://bohemihomes.bg/wp-content/uploads/2025/09/4-9-14-19-24.jpg |
| Д | 3 | Приложение 10E | одна спальня | SI | 58.62 м2 | 11.42 м2 | 72.49 м2 | продано | https://bohemihomes.bg/wp-content/uploads/2025/09/5-10-15-20-25.jpg |
| Д | 4 | Приложение 11E | одна спальня | SI | 70.39 м2 | 13.71 м2 | 87.12 м2 | продано | https://bohemihomes.bg/wp-content/uploads/2025/09/1-6-11-16-21.jpg |
| Д | 4 | Приложение 12E | одна спальня | NW | 61.57 м2 | 11.99 м2 | 76.36 м2 | Бесплатно | https://bohemihomes.bg/wp-content/uploads/2025/09/2-7-12-17-22.jpg |
| Д | 4 | Приложение 13E | три спальни | SW | 87.64 м2 | 17.07 м2 | 108.02 м2 | продано | https://bohemihomes.bg/wp-content/uploads/2025/09/3-8-13-18-23.jpg |
| Д | 4 | Приложение 14E | три спальни | UZI | 93.32 м2 | 18.17 м2 | 116.17 м2 | продано | https://bohemihomes.bg/wp-content/uploads/2025/09/4-9-14-19-24.jpg |
| Д | 4 | Приложение 15E | одна спальня | SI | 58.62 м2 | 11.42 м2 | 72.70 м2 | продано | https://bohemihomes.bg/wp-content/uploads/2025/09/5-10-15-20-25.jpg |
| Д | 5 | Приложение 16E | одна спальня | SI | 70.39 м2 | 13.71 м2 | 87.12 м2 | Бесплатно | https://bohemihomes.bg/wp-content/uploads/2025/09/1-6-11-16-21.jpg |
| Д | 5 | Приложение 17E | одна спальня | NW | 61.57 м2 | 11.99 м2 | 76.36 м2 | продано | https://bohemihomes.bg/wp-content/uploads/2025/09/2-7-12-17-22.jpg |
| Д | 5 | Приложение 18E | три спальни | SW | 87.64 м2 | 17.07 м2 | 108.13 м2 | продано | https://bohemihomes.bg/wp-content/uploads/2025/09/3-8-13-18-23.jpg |
| Д | 5 | Приложение 19E | три спальни | UZI | 93.32 м2 | 18.17 м2 | 116.29 м2 | Бесплатно | https://bohemihomes.bg/wp-content/uploads/2025/09/4-9-14-19-24.jpg |
| Д | 5 | Приложение 20E | одна спальня | SI | 58.62 м2 | 11.42 м2 | 72.70 м2 | продано | https://bohemihomes.bg/wp-content/uploads/2025/09/5-10-15-20-25.jpg |
| Д | 6 | Приложение 21E | одна спальня | SI | 70.39 м2 | 13.71 м2 | 87.36 м2 | продано | https://bohemihomes.bg/wp-content/uploads/2025/09/1-6-11-16-21.jpg |
| Д | 6 | Приложение 22E | одна спальня | NW | 61.57 м2 | 11.99 м2 | 76.37 м2 | Бесплатно | https://bohemihomes.bg/wp-content/uploads/2025/09/2-7-12-17-22.jpg |
| Д | 6 | Приложение 23E | три спальни | SW | 87.64 м2 | 17.07 м2 | 108.37 м2 | Бесплатно | https://bohemihomes.bg/wp-content/uploads/2025/09/3-8-13-18-23.jpg |
| Д | 6 | Приложение 24E | три спальни | UZI | 93.32 м2 | 18.17 м2 | 116.32 м2 | Бесплатно | https://bohemihomes.bg/wp-content/uploads/2025/09/4-9-14-19-24.jpg |
| Д | 6 | Приложение 25E | одна спальня | SI | 58.62 м2 | 11.42 м2 | 72.70 м2 | продано | https://bohemihomes.bg/wp-content/uploads/2025/09/5-10-15-20-25.jpg |
| Д | 7 | Приложение 26E | одна спальня | NW | 61.54 м2 | 11.98 м2 | 76.44 м2 | Бесплатно | https://bohemihomes.bg/wp-content/uploads/2025/09/26.jpg |
| Д | 7 | Приложение 27E | три спальни | SUS | 87.23 м2 | 16.99 м2 | 107.97 м2 | Бесплатно | https://bohemihomes.bg/wp-content/uploads/2025/09/27.jpg |
| Д | 7 | Приложение 28E | три спальни | UZI | 93.03 м2 | 18.12 м2 | 116.98 м2 | Бесплатно | https://bohemihomes.bg/wp-content/uploads/2025/09/28.jpg |
| Д | 7 | Приложение 29E | одна спальня | SI | 58.55 м2 | 11.40 м2 | 72.63 м2 | Бесплатно | https://bohemihomes.bg/wp-content/uploads/2025/09/29.jpg |
| Е | 2 | Приложение 1F | три спальни | UCI | 88.66 м2 | 17.27 м2 | 109.07 м2 | Бесплатно | https://bohemihomes.bg/wp-content/uploads/2025/09/e-1-4-7-10-13.jpg |
| Е | 2 | Приложение 2E | три спальни | SEIZ | 80.8 м2 | 15.74 м2 | 98.82 м2 | Бесплатно | https://bohemihomes.bg/wp-content/uploads/2025/09/e-2-5-8-11-14.jpg |
| Е | 2 | Приложение 3E | три спальни | UCI | 88.26 м2 | 17.19 м2 | 108.28 м2 | Бесплатно | https://bohemihomes.bg/wp-content/uploads/2025/09/e-3-6-9-12-15.jpg |
| Е | 3 | Приложение 4E | три спальни | UCI | 88.66 м2 | 17.27 м2 | 109.48 м2 | Бесплатно | https://bohemihomes.bg/wp-content/uploads/2025/09/e-1-4-7-10-13.jpg |
| Е | 3 | Приложение 5E | три спальни | SEIZ | 80.8 м2 | 15.74 м2 | 98.58 м2 | продано | https://bohemihomes.bg/wp-content/uploads/2025/09/e-2-5-8-11-14.jpg |
| Е | 3 | Приложение 6E | три спальни | UCI | 88.26 м2 | 17.19 м2 | 108.28 м2 | продано | https://bohemihomes.bg/wp-content/uploads/2025/09/e-3-6-9-12-15.jpg |
| Е | 4 | Приложение. 7Е | три спальни | UCI | 88.66 м2 | 17.27 м2 | 109.99 м2 | продано | https://bohemihomes.bg/wp-content/uploads/2025/09/e-1-4-7-10-13.jpg |
| Е | 4 | Приложение 8E | три спальни | SEIZ | 80.8 м2 | 15.74 м2 | 98.82 м2 | продано | https://bohemihomes.bg/wp-content/uploads/2025/09/e-2-5-8-11-14.jpg |
| Е | 4 | Приложение 9E | три спальни | UCI | 88.26 м2 | 17.19 м2 | 108.28 м2 | продано | https://bohemihomes.bg/wp-content/uploads/2025/09/e-3-6-9-12-15.jpg |
| Е | 5 | Приложение 10E | три спальни | UCI | 88.66 м2 | 17.27 м2 | 109.07 м2 | Бесплатно | https://bohemihomes.bg/wp-content/uploads/2025/09/e-1-4-7-10-13.jpg |
| Е | 5 | Приложение 11E | три спальни | SEIZ | 80.8 м2 | 15.74 м2 | 98.82 м2 | продано | https://bohemihomes.bg/wp-content/uploads/2025/09/e-2-5-8-11-14.jpg |
| Е | 5 | Приложение 12E | три спальни | UCI | 88.26 м2 | 17.19 м2 | 108.31 м2 | Бесплатно | https://bohemihomes.bg/wp-content/uploads/2025/09/e-3-6-9-12-15.jpg |
| Е | 6 | Приложение 13E | три спальни | UCI | 88.66 м2 | 17.27 м2 | 110.51 м2 | Бесплатно | https://bohemihomes.bg/wp-content/uploads/2025/09/e-1-4-7-10-13.jpg |
| Е | 6 | Приложение 14E | три спальни | SEIZ | 80.8 м2 | 15.74 м2 | 98.91 м2 | Бесплатно | https://bohemihomes.bg/wp-content/uploads/2025/09/e-2-5-8-11-14.jpg |
| Е | 6 | Приложение 15E | три спальни | UCI | 91.89 м2 | 17.90 м2 | 114.70 м2 | Бесплатно | https://bohemihomes.bg/wp-content/uploads/2025/09/e-3-6-9-12-15.jpg |
| Ж | 2 | Приложение 1G | одна спальня | SI | 70.48 м2 | 13.66 м2 | 86.67 м2 | продано | https://bohemihomes.bg/wp-content/uploads/2025/09/1-6-11-16.jpg |
| Ж | 2 | Приложение 2G | одна спальня | NW | 68.22 м2 | 13.22 м2 | 83.95 м2 | Бесплатно | https://bohemihomes.bg/wp-content/uploads/2025/09/2-7-12-17.jpg |
| Ж | 2 | Приложение. 3G | три спальни | SW | 89.1 м2 | 17.27 м2 | 110.61 м2 | продано | https://bohemihomes.bg/wp-content/uploads/2025/09/3-8-13-18.jpg |
| Ж | 2 | Приложение. 4G | три спальни | UZI | 93.69 м2 | 18.16 м2 | 116.23 м2 | продано | https://bohemihomes.bg/wp-content/uploads/2025/09/4-9-14-19.jpg |
| Ж | 2 | Приложение. 5G | одна спальня | SI | 58.81 м2 | 11.40 м2 | 72.26 м2 | продано | https://bohemihomes.bg/wp-content/uploads/2025/09/5-10-15-20.jpg |
| Ж | 3 | Приложение 6G | одна спальня | SI | 70.48 м2 | 13.66 м2 | 86.71 м2 | продано | https://bohemihomes.bg/wp-content/uploads/2025/09/1-6-11-16.jpg |
| Ж | 3 | Приложение. 7Ж | одна спальня | NW | 68.22 м2 | 13.22 м2 | 75.79 м2 | продано | https://bohemihomes.bg/wp-content/uploads/2025/09/2-7-12-17.jpg |
| Ж | 3 | Приложение 8G | три спальни | SW | 89.1 м2 | 17.27 м2 | 107.36 м2 | продано | https://bohemihomes.bg/wp-content/uploads/2025/09/3-8-13-18.jpg |
| Ж | 3 | Приложение 9G | три спальни | UZI | 93.69 м2 | 18.16 м2 | 115.90 м2 | продано | https://bohemihomes.bg/wp-content/uploads/2025/09/4-9-14-19.jpg |
| Ж | 3 | Приложение 10G | одна спальня | SI | 58.81 м2 | 11.40 м2 | 71.88 м2 | продано | https://bohemihomes.bg/wp-content/uploads/2025/09/5-10-15-20.jpg |
| Ж | 4 | Приложение 11G | одна спальня | SI | 70.48 м2 | 13.66 м2 | 86.74 м2 | продано | https://bohemihomes.bg/wp-content/uploads/2025/09/1-6-11-16.jpg |
| Ж | 4 | Приложение 12G | одна спальня | NW | 68.22 м2 | 13.22 м2 | 75.79 м2 | продано | https://bohemihomes.bg/wp-content/uploads/2025/09/2-7-12-17.jpg |
| Ж | 4 | Приложение 13G | три спальни | SW | 89.1 м2 | 17.27 м2 | 107.67 м2 | продано | https://bohemihomes.bg/wp-content/uploads/2025/09/3-8-13-18.jpg |
| Ж | 4 | Приложение 14G | три спальни | UZI | 93.69 м2 | 18.16 м2 | 116.34 м2 | Бесплатно | https://bohemihomes.bg/wp-content/uploads/2025/09/4-9-14-19.jpg |
| Ж | 4 | Приложение 15G | одна спальня | SI | 58.81 м2 | 11.40 м2 | 72.15 м2 | продано | https://bohemihomes.bg/wp-content/uploads/2025/09/5-10-15-20.jpg |
| Ж | 5 | Приложение 16G | одна спальня | SI | 70.48 м2 | 13.66 м2 | 86.77 м2 | Бесплатно | https://bohemihomes.bg/wp-content/uploads/2025/09/1-6-11-16.jpg |
| Ж | 5 | Приложение 17G | одна спальня | NW | 68.22 м2 | 13.22 м2 | 75.97 м2 | Бесплатно | https://bohemihomes.bg/wp-content/uploads/2025/09/2-7-12-17.jpg |
| Ж | 5 | Приложение 18G | три спальни | SW | 89.1 м2 | 17.27 м2 | 107.87 м2 | Бесплатно | https://bohemihomes.bg/wp-content/uploads/2025/09/3-8-13-18.jpg |
| Ж | 5 | Приложение 19G | три спальни | UZI | 93.69 м2 | 18.16 м2 | 117.81 м2 | Бесплатно | https://bohemihomes.bg/wp-content/uploads/2025/09/4-9-14-19.jpg |
| Ж | 5 | Приложение 20G | одна спальня | SI | 58.81 м2 | 11.40 м2 | 72.15 м2 | Бесплатно | https://bohemihomes.bg/wp-content/uploads/2025/09/5-10-15-20.jpg |



